2b
NEWS
PROJECTS
COMPETITION
URBAN
PUBLIC SPACE
ARCHITECTURE
TRANSFORMATION
CLINIQUE DENTAIRE DU LAC
MAISON AU GAOU BÉNAT
MAISON T
CLINIQUE DENTAIRE ARDENTIS EPFL
MAISON RUTSCHMANN
MAISON PUJOL
LA MAISON CLAIRE
TOUR MOINAT
VILLA BIERMANN
TERRASSE A CULLY
SICHTBAR
HAUS BIHLMAIER
STRUCTURE
OUTPUTS
ACADEMICS
CONTACTS
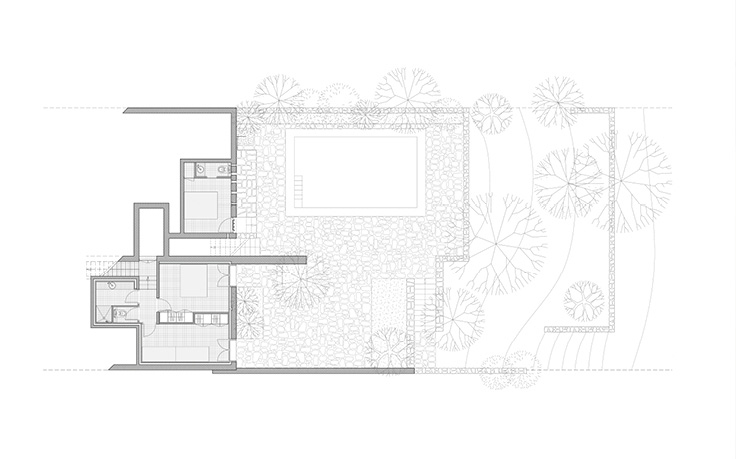
Maison au Gaou Bénat
Bormes-les-Mimosas, France
Projet 2014
Réalisation 2017
Team 2b
S.Bender
Ph.Béboux
V.Vergain
V.Fourel
A.Martin
Photographe
Matthieu Gafsou, Lausanne
<<
<
idx
/
count
>